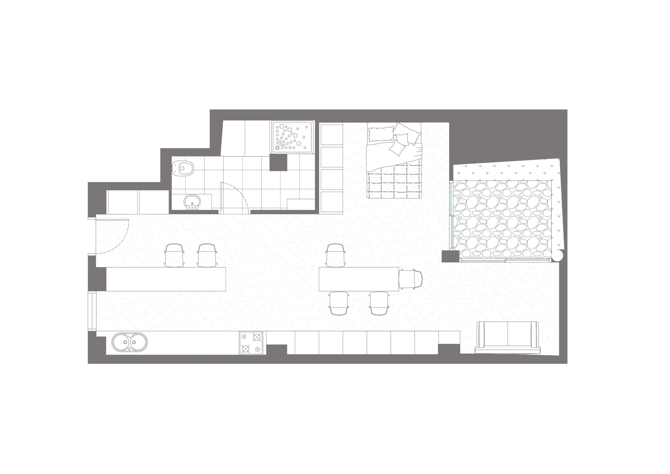
Este proyecto está destinado a una pareja joven sin hijos. Se prima la espacialidad en un espacio abierto, cambiante, flexible y polivalente. Es un hábitat austero con tendencia minimalista, conectado con la naturaleza y el entorno de forma longitudinal, aprovechando las entradas de luz.

El proyecto partía de una planta baja para rehabilitar en un céntrico barrio de Alcoi. Por el actual estado en desuso necesitaba una reforma inmediata.







